Vivienda Incompleta // Sauce Viejo // 2009
Huella mínima multiplicidad máxima.
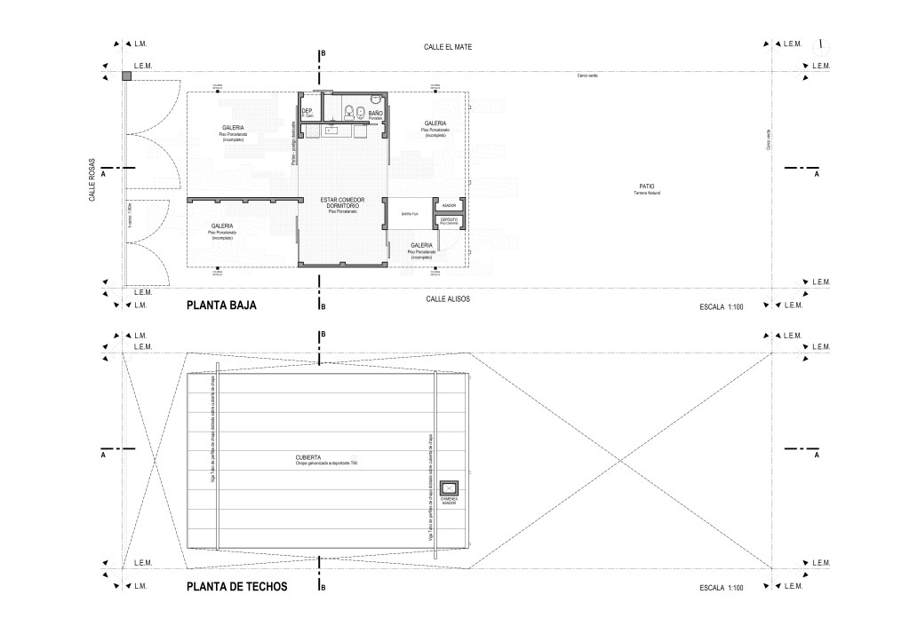
Ante el pedido de “un pequeño salón de 8m x 4m para que acompañe la piscina y donde alguien se pueda quedar a dormir” se propone una estructura elemental pero compleja en sus implicancias.
Se trata de un pabellón que introduce multiplicidad de espacios por medio de sus componentes: dos largos muros exentos y dos prismas (uno compacto y otro virtual) todos cubiertos por una gran cubierta plana. La necesidad de cierre del recinto central del pabellón se resuelve por medio de paneles móviles de grandes dimensiones. Toda esta estructura se halla “engrampada” por dos pequeños pórticos metálicos que evitan el “vuelo” de la cubierta a raíz de los fuertes vientos que azotan la zona.

Haciendo un intensivo uso del espacio exterior se crean cuatro “habitaciones incompletas” en las cuales tres de sus cerramientos son artificiales y tres son totalmente naturales. Todos estos ámbitos quedan vinculados por un espacio único fluido y homogéneo. De manera simultánea, gracias a sus grandes paneles móviles, el espacio central adquiere un carácter de cabaña íntima en épocas de frío, y de apertura total a la naturaleza en épocas cálidas, las cuales tienen lugar la mayor parte del año.

Otro rasgo distintivo del proyecto es su particular manera de plantear el acceso desafiando la concepción clásica de acceso único. En la presente propuesta gracias a la contradicción presente el sujeto es sorprendido y obligado a afianzar su presencia para tomar la decisión de cómo abordar el espacio. La realidad del hecho es que ambos espacios de ingreso llevan al sujeto al mismo lugar. Cualquier decisión es válida. El proyecto solo desafía las convenciones relacionadas con este tema.
El proyecto tampoco disimula un especial interés en la sombra y en las herramientas de proyectos que se desprenden de la obra de Junichiro Tanizaki en su obra “El Elogio de la Sombra”. Pese a su simpleza el proyecto termina haciendo uso de una sombra que aprovecha la profundidad del espacio en las diferentes direcciones para componer un recorrido compuestos por imágenes enmarcadas de un verde intenso y una luz fuerte propia de estas latitudes.


[g+]






