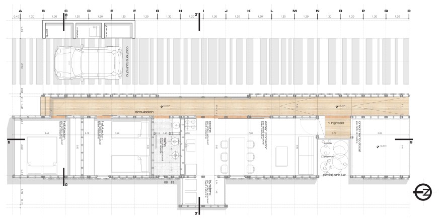
Vivienda prefabricada de madera // Santa Fe // 2007
…dar lugar a la diversidad dentro de un orden…
La búsqueda sostenida durante todo el proceso de diseño apunta a lograr condiciones espaciales únicas basadas en las posibilidades que otorga la madera, sin dejar de asegurar la máxima flexibilidad del proyecto.
La gran flexibilidad se debe al hecho de haber optado por un planteo lineal, capaz de crecer en sus dos extremos sin sacrificar condiciones espaciales.
Para poder hablar de …dar lugar a la diversidad… se ha diseñado siempre pensando en estructuras familiares tipo así como también las en las más insospechadas.
…dentro de un orden… Nos referimos tanto al orden del planteo, como así también al orden urbano.
Las condiciones espaciales logradas son fruto de las posibilidades que otorgan los recursos bioclimáticos, la materialidad y las necesidades de los usuarios.
[g+ Fernando Giussani ]










